Портальные стенки устанавливают на входе и выходе водотока на автомобильных и железных дорогах с любой интенсивностью движения. Трубопровод монтируется к портальной части звена. Благодаря достаточной несущей способности элементов имеется возможность их применения в дорожном строительстве любой сложности.
Конструкции стенок одинаковы как под железную так и под автомобильную дороги.
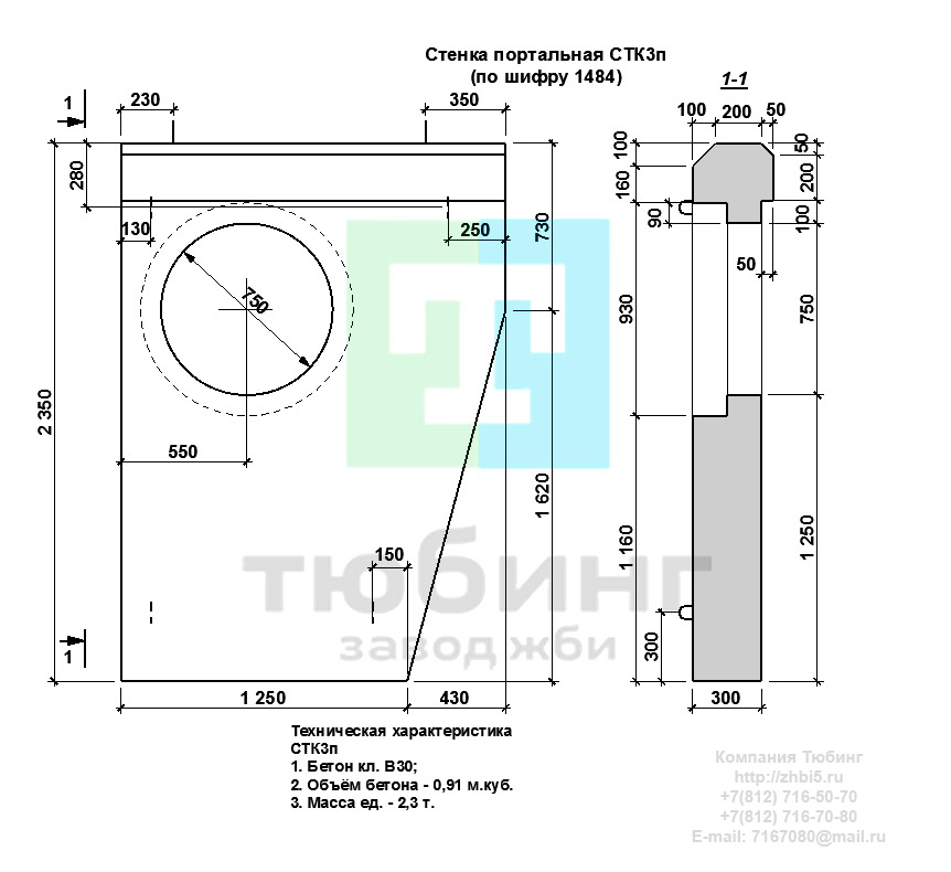
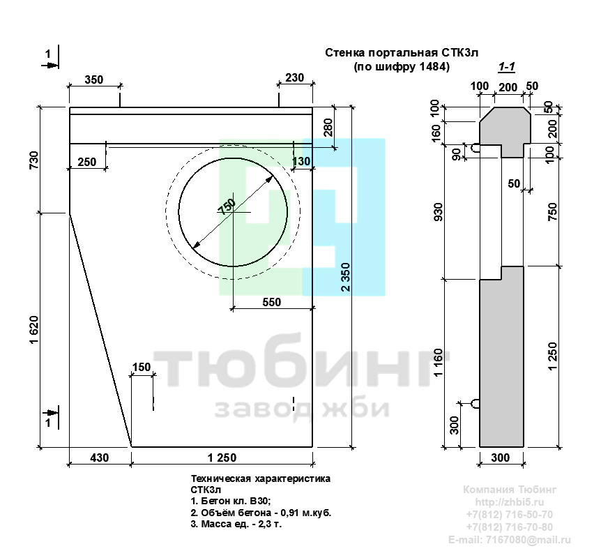
Материал портальных стенок СТК3л(п) - конструкционный тяжелый бетон по ГОСТ 26633-91 класса В30 по прочности на сжатие.
Марка по водонепроницаемости W6, по морозостойкости - F200-F300 в зависимости от климатических условий строительства.
Минимальная прочность бетона блоков ко времени выдачи конструкций на склад не менее 70%. Отпускная прочность бетона - 100%.
Стенки портальные армируются арматурой по ГОСТ 5781-82 из углеродистой горячекатаной стали класса А-I марки Ст3сп и из стали класса А-III марки 25Г2С или 35ГС.
Соединение арматурных изделий в каркас производится с помощью контактной точечной электросварки сварки или вязальной проволокой.
Для монтажных петель следует применять арматуру по ГОСТ 5781-82 из стали класса А-I марки Ст3сп.
Марка стенки состоит из одной или двух буквенно-цифровых групп, разделенных дефисом. Первая группа содержит наименование блока, его типоразмер и основную геометрическую характеристику в см; вторая группа обозначение применения: климатические условия - суровые (F), повышенная агрессивность среды (О).
Варианты маркировки:
1. СТК3л(п)
2. СТК 3л(п)
3. СТК-3л(п)
4. СТК.3л(п)
5. СТК3лп
6. СТК 3лп
7. СТК-3лп
8. СТК.3лп
9. СТК 3 л п
10. CTK3л(п)
11. CTK 3л(п)
Цена на стенку портальную CTK3л(п) указана с учетом НДС, без учета доставки. Стоимость ЖБИ по шифру 1484 не является публичной офертой и может меняться в зависимости от количества заказываемых изделий и общей ситуации на строительном рынке.
